Wir unterstützen kostenlos* bei der Antragstellung für Ihre 15% BAFA-Förderung*

Maximale Dämmung, minimale Ansicht

IDEAL NEO MD

Das Premium-6-Kammer-System mit 3 Dichtungsebenen, Mitteldichtung und schlanken Schmalprofilkombinationen für maximale Lichtzufuhr.

6
Kammern
0,76
Uw W/(m²K)
76mm
Bautiefe
36dB
Schallschutz
IDEAL NEO MD Musterecke

15% BAFA-Förderung — wir unterstützen kostenlos* bei der Antragstellung*

Auch das IDEAL NEO MD kann förderfähig sein. Wir prüfen Ihren Anspruch und kümmern uns um alles Weitere.

Förderung sichern
Profilquerschnitt

IDEAL NEO MD im Detail

Profilquerschnitt

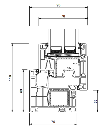
IDEAL NEO MD Profilquerschnitt — 6-Kammer-System 76mm
6
Kammern
76mm
Bautiefe
3-fach
Dichtung

Musterecke

IDEAL NEO MD Musterecke

IDEAL NEO MD — Profilansicht

Profilmerkmale auf einen Blick:

  • 6-Kammer-Profil mit Schmalprofilkombination
  • V-perfect Schweißnähte
  • Symmetrische Profilansicht
  • Dreifach-Dichtung mit Mitteldichtung
  • Glaspaket bis 54mm
Produktbeschreibung

Schmalprofile, Mitteldichtung, maximales Licht

Das IDEAL NEO MD ist die Premium-Variante der NEO-Serie und verbindet extreme Schmalprofilkombinationen mit einem innovativen 3-Dichtungssystem. Mit seinem 6-Kammer-Profil und einer Bautiefe von 76 Millimetern erreicht es einen herausragenden Uw-Wert von 0,76 W/(m²K) — die Mitteldichtung sorgt für eine zusätzliche Isolationsebene gegenüber dem AD-Modell.

Die schlanken, symmetrischen Profile ermöglichen maximale Glasflächen und damit optimale Lichtzufuhr. Die V-perfect Schweißtechnik garantiert nahtlos glatte Profilecken ohne sichtbare Schweißraupen — eine hochwertige Oberfläche, die optisch an Aluminium-Profile erinnert.

Drei Dichtungsebenen — Anschlagsdichtung, Mitteldichtung und Glasdichtung — bilden eine besonders wirksame Barriere gegen Wind, Regen und Kälte. Das System nimmt Glaseinbauten von 24 bis 54 Millimetern auf. Optional verfügbar ist der Swisspacer Ultimate Randverbund (Warme Kante) für eine noch bessere Energiebilanz. Der Schallschutz liegt bei bis zu 36 Dezibel.

Zur Standardausstattung gehören 4 Sicherheits-Pilzzapfen, eine Mikrolüftungsfunktion und ein Aluminium-Fenstergriff mit Blockierungsmechanismus. Mit über 40 Farben und Dekoren eignet sich das IDEAL NEO MD ideal für anspruchsvolle Neubauten und Modernisierungen, bei denen höchste Energieeffizienz und modernes Design gefragt sind.

Technische Daten

Alle Spezifikationen im Überblick

Profilsystem 6-Kammer-System
Bautiefe 76 mm
Wärmedurchgangskoeffizient (Uw) 0,76 W/(m²K)
Glaseinbau 24 – 54 mm
Dichtungen 3 Dichtungsebenen (Anschlag, Mitte, Glas)
Schallschutz bis 36 dB
Schweißnahtverfahren V-perfect (nahtlos glatte Ecken)
Sicherheit 4 Pilzzapfen (Standard)
Farben & Dekore 40+ Optionen
Profilklasse Klasse B (DIN EN 12608)
Vorteile

Das bietet Ihnen das IDEAL NEO MD

V-perfect Schweißnähte

Patentiertes Verfahren für nahtlos glatte Profilecken — keine sichtbaren Schweißraupen, Oberfläche wie aus einem Guss.

Maximale Lichtzufuhr

Extreme Schmalprofilkombinationen sorgen für größtmögliche Glasflächen — mehr Tageslicht in jedem Raum.

3-fach Dichtungssystem

Anschlagsdichtung, Mitteldichtung und Glasdichtung bilden drei Barrieren gegen Wind, Regen und Wärmeverlust.

4 Pilzzapfen serienmäßig

Bereits in der Grundausstattung mit 4 Sicherheits-Pilzzapfen ausgestattet — erhöhter Einbruchschutz ab Werk.

40+ Farben & Dekore

Riesige Auswahl an Farben und Holzdekoren — das IDEAL NEO MD passt sich jedem architektonischen Stil an.

BAFA-förderfähig

Bei entsprechender Verglasung ist eine 15% BAFA-Förderung möglich — wir prüfen die Voraussetzungen und begleiten kostenlos* durch den Prozess*.

Interesse am IDEAL NEO MD?

Holen Sie sich jetzt Ihr maßgeschneidertes Angebot — kostenlos*, unverbindlich und mit Prüfung Ihres BAFA-Förderanspruchs.