Wir unterstützen kostenlos* bei der Antragstellung für Ihre 15% BAFA-Förderung*

Maximaler Lichteinfall

IGLO Light

Das schlanke Fensterprofil für maximale Glasfläche — 32% weniger Flügelbreite bedeutet deutlich mehr Tageslicht.

5
Kammern
0,88
Uw W/(m²K)
70mm
Bautiefe
-32%
Flügelbreite
IGLO Light PVC-Fenster Profilansicht

15% BAFA-Förderung — wir unterstützen kostenlos* bei der Antragstellung*

Mehr Licht und weniger Kosten: Das IGLO Light kann förderfähig sein. Wir klären das für Sie ab.

Förderung sichern
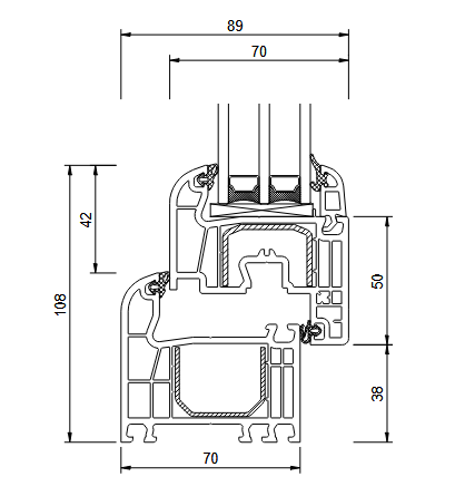
Profilquerschnitt

IGLO Light im Detail

Profilquerschnitt

IGLO Light Profilquerschnitt — 5-Kammer-System 70mm
5
Kammern
70mm
Bautiefe
2-fach
Dichtung

Musterecke

IGLO Light Musterecke

IGLO Light — Profilansicht

Profilmerkmale auf einen Blick:

  • Kompaktes 5-Kammer-Profil
  • Wirtschaftliche Lösung
  • Gute Wärmedämmung
  • Schlankes Design
  • Vielseitig einsetzbar
Produktbeschreibung

Schlankes Design, maximales Tageslicht

Das IGLO Light wurde für Bauherren entwickelt, die sich besonders viel natürliches Licht in ihren Räumen wünschen. Sein markantestes Merkmal ist der um 32 Prozent verschlankte Fensterflügel, der die sichtbare Glasfläche erheblich vergrößert. Das Ergebnis: helle, lichtdurchflutete Wohnräume ohne Kompromisse bei der Wärmedämmung.

Trotz der deutlich schlankeren Profilansicht basiert das IGLO Light auf einer bewährten Fünf-Kammer-Architektur mit 70 Millimetern Bautiefe. Es erreicht einen Uw-Wert von 0,88 W/(m²K) und liegt damit komfortabel unter den geltenden Anforderungen der Energieeinsparverordnung. Zwei umlaufende EPDM-Dichtungen gewährleisten eine zuverlässige Abdichtung.

Der Schallschutz beträgt 34 bis 44 Dezibel je nach Glaspaket. Die Verglasungsoptionen reichen bis 40 Millimeter Glasdicke, wobei die Standardverglasung einen Ug-Wert von 1,1 W/(m²K) bietet.

Das IGLO Light ist die optimale Lösung für alle, die eine moderne, lichtbetonte Fenstergestaltung bevorzugen. Es empfiehlt sich besonders für Räume auf der Nordseite, für Wohnungen mit begrenzter Fensterfläche oder überall dort, wo jeder Zentimeter Glasfläche einen Unterschied macht. Das schlanke Erscheinungsbild verleiht der Fassade gleichzeitig eine zeitgenössische, elegante Ästhetik.

Technische Daten

Alle Spezifikationen im Überblick

Profilsystem 5-Kammer-System
Bautiefe 70 mm
Wärmedurchgangskoeffizient (Uw) 0,88 W/(m²K)
Verglasung (Ug) 1,1 W/(m²K)
Glaseinbau 24 – 40 mm
Dichtungen 2 EPDM-Dichtungsebenen
Schallschutz 34 – 44 dB
Flügelbreite 32% schmaler als Standard
Vorteile

Was das IGLO Light besonders macht

32% mehr Glasfläche

Der deutlich verschlankte Flügel maximiert den Lichteinfall und lässt Ihre Räume grösser und heller wirken.

Effiziente Dämmung

Trotz des schlanken Designs erreicht das IGLO Light einen Uw-Wert von 0,88 — weit unter den gesetzlichen Anforderungen.

Modernes Design

Die schmalen Profilansichten verleihen jeder Fassade ein zeitgemäßes, elegantes Aussehen mit klaren Linien.

Zuverlässig dicht

Zwei dauerhafte EPDM-Dichtungen schützen vor Wind, Regen und Kälte — trotz des schlankeren Profils ohne Abstriche.

Ideal für Nordzimmer

Besonders empfehlenswert für lichtärmere Räume, Nordfassaden und Gebäude mit kleineren Fensteröffnungen.

BAFA-förderfähig

Bei passender Verglasung kann auch das IGLO Light von der 15% BAFA-Förderung profitieren — wir unterstützen kostenlos* bei der Antragstellung*.

Interesse am IGLO Light?

Entdecken Sie, wie viel mehr Licht in Ihre Räume gelangen kann. Fordern Sie jetzt Ihr individuelles Angebot an — inklusive Unterstützung bei der BAFA-Antragstellung*.