Wir unterstützen kostenlos* bei der Antragstellung für Ihre 15% BAFA-Foerderung* Jetzt profitieren
MB-79N SI Aluminium-Fenster
Aluminium-Fenster

MB-79N SI

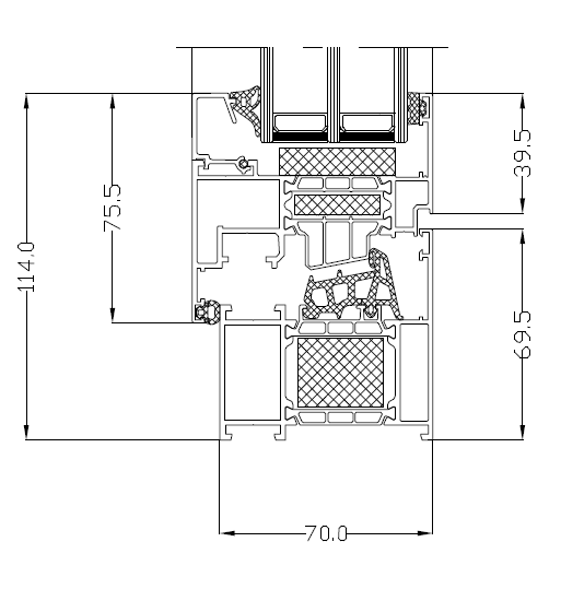
Das MB-79N SI steht fuer die gelungene Verbindung von kompaktem Profildesign und ueberzeugender thermischer Leistung. Mit einer Flügeltiefe von 79 mm (Rahmen 70 mm) und dem ausgereiften 3-Kammer-Prinzip erzielt dieses Aluminiumfenster einen Uw-Wert von nur 0,64 W/(m²K). Zwei EPDM-Dichtungen und eine Schaumdichtung bilden ein leistungsstarkes Drei-Barrieren-System gegen Wind und Naesse.

Uw = 0,64 W/(m²K) 3-Kammer-System 3 Dichtungsebenen

Wir unterstützen kostenlos* bei der Antragstellung für Ihre 15% BAFA-Foerderung*

Profitieren Sie von staatlichen Zueschuessen. Den gesamten Papierkram erledigen wir fuer Sie — ohne Zusatzkosten.

Foerderung sichern
Profilquerschnitt

MB-79N SI Aluminium im Detail

Profilquerschnitt

MB-79N SI Profilquerschnitt — 79mm Bautiefe
79mm
Bautiefe
Uw 0,64
W/(m²K)
Thermisch
getrennt

Musterecke

MB-79N SI Musterecke

MB-79N SI — Profilansicht

Profilmerkmale auf einen Blick:

  • Bewährtes Aluminium-System
  • Thermische Trennung SI
  • Vielseitig einsetzbar
  • Gute Wärmedämmung
  • RAL-Farben nach Wahl
Produktdetails

Kompakt, effizient und vielseitig

Bei einer Flügeltiefe von 79 mm (Rahmen 70 mm) bietet das MB-79N SI eine bemerkenswerte thermische Performance. Das dreifache Dichtungskonzept — bestehend aus zwei widerstandsfaehigen EPDM-Dichtungen und einer zusaetzlichen Schaumdichtung — stellt sicher, dass weder Zugluft noch Feuchtigkeit ins Innere gelangen. Glasaufbauten zwischen 10,5 und 63 mm lassen sich problemlos integrieren und bieten Spielraum fuer verschiedenste Verglasungsloesungen, von Schallschutz bis hin zu Sicherheitsglas.

Technische Daten

Profilsystem 3-Kammer Aluminium
Bautiefe 79 mm (Flügel) / 70 mm (Rahmen)
Waermedurchgang (Uw) 0,64 W/(m²K)
Dichtungen 3 (2x EPDM + 1x Schaum)
Verglasungsbereich 10,5 – 63 mm

Ihre Vorteile auf einen Blick

Effiziente Waermedaemmung

Mit einem Uw-Wert von 0,64 W/(m²K) gehoert das MB-79N SI zur Spitzenklasse in puncto Energieeinsparung.

Hybrides Dichtungskonzept

Die Kombination aus EPDM- und Schaumdichtungen bietet maximale Dichtigkeit bei jeder Witterung.

Kompakte Bauweise

79 mm Flügeltiefe (Rahmen 70 mm) machen das System besonders vielseitig einsetzbar — auch bei beengten Einbausituationen.

Breiter Verglasungsbereich

Glasstaerken von 10,5 bis 63 mm erlauben diverse Verglasungsvarianten fuer jeden Anspruch.

Wartungsfrei & robust

Aluminium ist korrosionsbestaendig und behaelt seine Form auch nach vielen Jahren zuverlaessig bei.

BAFA-foerderfaehig

Sichern Sie sich 15 % staatliche Foerderung — wir unterstützen kostenlos* bei der Antragstellung*.

MB-79N SI — Ihr naechster Schritt

Lassen Sie sich unverbindlich beraten und erhalten Sie Ihr individuelles Angebot inklusive Unterstützung bei der BAFA-Antragstellung*.