Wir unterstützen kostenlos* bei der Antragstellung für Ihre 15% BAFA-Förderung*
Premium Aluminium-Schiebetüren

COR VISION Aluminium-Schiebetür

Die COR VISION verwandelt Wände in Panoramafenster. Dank verdecktem Rahmen und schmalen Ansichtsbreiten verschwinden die Profile nahezu vollständig aus dem Blickfeld. Bei 77 mm Bautiefe erreicht dieses Premium-System einen Uw-Wert ab 0,9 W/(m²K) — für grenzenlose Ausblicke bei höchster Energieeffizienz.

77 mm Bautiefe Uw ab 0,9 Verdeckter Rahmen Modern
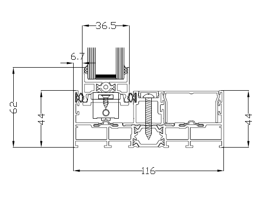
Profilquerschnitt

COR VISION Aluminium-Schiebetür im Detail

Profilquerschnitt

COR VISION Aluminium-Schiebetür Profilquerschnitt
Verdeckt
Rahmen
77 mm
Bautiefe
ab 0,9
W/(m²K)

Profilmerkmale auf einen Blick:

  • Verdeckter Rahmen für nahezu rahmenlose Optik
  • 77 mm Bautiefe mit hocheffizienten Wärmedämmzonen
  • Schmale Ansichtsbreiten für maximalen Glasanteil
  • 2-fach oder 3-fach Verglasung wählbar
  • Passivhaus-taugliche Energieeffizienz ab Uw 0,9

Wo der Rahmen verschwindet

Die COR VISION verfolgt ein konsequentes Designziel: den sichtbaren Rahmenanteil auf ein absolutes Minimum zu reduzieren. Verdeckt liegende Profile sorgen dafür, dass von innen betrachtet nur die Glasfläche wahrgenommen wird. Dieser Effekt erzeugt eine einzigartige Verschmelzung von Wohnraum und Außenbereich.

Das 77 mm tiefe Aluminiumprofil integriert hocheffiziente Wärmedämmzonen und erreicht so einen Uw-Wert ab 0,9 W/(m²K). Damit eignet sich die COR VISION nicht nur für den gehobenen Wohnungsbau, sondern erfüllt auch die Anforderungen von Niedrigenergie- und Passivhausstandards.

Die schmalen Ansichtsbreiten maximieren die sichtbare Glasfläche und damit den Lichteinfall. Selbst an trüben Tagen profitieren Sie von einer natürlich hellen Wohnatmosphäre, die den Bedarf an künstlicher Beleuchtung deutlich reduziert.

Besondere Merkmale

  • Verdeckter Rahmen für nahezu rahmenlose Optik
  • Schmale Ansichtsbreiten für maximalen Glasanteil
  • 77 mm Bautiefe mit Uw ab 0,9 W/(m²K)
  • Große Glasflächen für lichtdurchflutete Räume
  • Zeitgemäßes Design für anspruchsvolle Architektur

Technische Daten

ProfilsystemCOR VISION (Aluminium)
MaterialAluminium
Bautiefe77 mm
Uw-Wertab 0,9 W/(m²K)
RahmenVerdeckt liegend
AnsichtsbreitenSchmal / minimalistisch
ÖffnungsartSchiebetür
Verglasung2-fach / 3-fach
15 % BAFA-Förderung sichern

Wir unterstützen kostenlos* bei der Antragstellung für Ihre 15% BAFA-Förderung*

Förderung anfragen

Ihre Vorteile mit der COR VISION

Nahezu rahmenlos

Verdeckte Rahmenprofile erzeugen den Eindruck einer reinen Glaswand — Panoramablick garantiert.

Premium-Dämmung

Uw ab 0,9 W/(m²K) erfüllt auch anspruchsvollste Energiestandards — bis hin zum Passivhausniveau.

Maximaler Lichteinfall

Schmale Ansichtsbreiten lassen mehr Tageslicht in den Raum — für eine natürlich helle Wohnatmosphäre.

Zeitgenössisches Design

Die puristische Formensprache der COR VISION passt perfekt zu moderner, klarer Architektur.

BAFA-förderfähig

Sichern Sie sich 15 % staatliche Förderung — wir unterstützen kostenlos* bei der Antragstellung*.

Langlebiges Aluminium

Wartungsfrei, korrosionsbeständig und UV-stabil — die COR VISION behält ihre Qualität über Jahrzehnte.

Entdecken Sie die COR VISION

Erleben Sie, wie eine nahezu rahmenlose Schiebetür Ihr Zuhause in einen lichtdurchfluteten Lebensraum verwandelt.