Wir unterstützen kostenlos* bei der Antragstellung für Ihre 15% BAFA-Förderung*
PVC-Schiebetüren

IGLO EDGE Slide

Auf Basis des bewährten IGLO EDGE Systems entstand diese leistungsstarke PVC-Schiebetür. Das 7-Kammer-Profil mit 82 mm Bautiefe erreicht einen Uw-Wert ab 0,9 W/(m²K) und bietet damit einen fließenden Übergang zwischen Wohnraum und Terrasse — energieeffizient, leichtgängig und alltagstauglich.

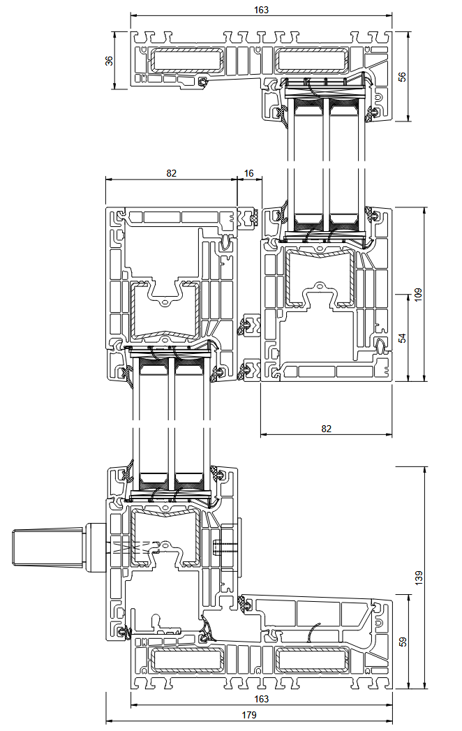
82 mm Bautiefe 7 Kammern Uw ab 0,9 3 Dichtungen
Profilquerschnitt

IGLO EDGE Slide im Detail

Profilquerschnitt

IGLO EDGE Slide Profilquerschnitt — 82mm 7-Kammer-Schiebe
82mm
Bautiefe
Schiebe
Typ
7-Kammer
Profil

Terrassensystem-Rendering

IGLO EDGE Slide Rendering

IGLO EDGE Slide — 7-Kammer Schiebetür

Profilmerkmale auf einen Blick:

  • IGLO EDGE Schiebetür
  • 7-Kammer Premium-Profil
  • Platzsparendes Schiebeprinzip
  • Hervorragende Wärmedämmung
  • V-Perfect Schweißnaht

Bewährte Technik, gleitend einfach

Die IGLO EDGE Slide nutzt das bewährte 7-Kammer-Profil des IGLO EDGE Systems und überträgt dessen hervorragende Dämmeigenschaften auf eine komfortable Schiebetürkonstruktion. Das Ergebnis: Ein Uw-Wert ab 0,9 W/(m²K), der selbst ambitionierte Energiestandards problemlos erfüllt.

Die leichtgängige Laufmechanik ermöglicht müheloses Öffnen und Schließen — auch bei großen Flügelmaßen. Drei umlaufende Dichtungsebenen sorgen für zuverlässigen Schutz gegen Zugluft, Schlagregen und Straßenlärm. So genießen Sie ungestörte Ruhe und ein angenehmes Raumklima.

Im Vergleich zu einer herkömmlichen Balkontür spart die Schiebevariante wertvollen Wohnraum, da kein Flügel in den Raum hinein schwenkt. Die großzügige Verglasung maximiert den Lichteinfall und schafft eine offene, lichtdurchflutete Wohnatmosphäre.

Besondere Merkmale

  • 7-Kammer-Profil mit 82 mm Bautiefe für beste Dämmwerte
  • Leichtgängige Schiebemechanik für komfortable Bedienung
  • 3 Dichtungsebenen gegen Wind, Regen und Lärm
  • Platzsparend dank Schiebefunktion ohne Schwenkbereich
  • Basiert auf dem bewährten IGLO EDGE Fenstersystem

Technische Daten

ProfilsystemIGLO EDGE Slide (PVC)
Kammern7
Bautiefe82 mm
Uw-Wertab 0,9 W/(m²K)
Dichtungen3 (umlaufend)
Verglasung2-fach / 3-fach
ÖffnungsartSchiebetür
MaterialPVC
15 % BAFA-Förderung sichern

Wir unterstützen kostenlos* bei der Antragstellung für Ihre 15% BAFA-Förderung*

Förderung anfragen

Ihre Vorteile mit der IGLO EDGE Slide

7-Kammer-Dämmung

Sieben Luftkammern im Profil sorgen für hervorragende Wärmedämmung und spürbar niedrigere Heizkosten.

Platzsparende Konstruktion

Anders als Drehtüren benötigt die Schiebetür keinen Schwenkbereich und spart so wertvollen Wohnraum.

Leichtgängiger Betrieb

Hochwertige Laufrollen ermöglichen müheloses Gleiten — auch bei täglichem, intensivem Gebrauch.

Dreifach abgedichtet

Drei Dichtungsebenen bieten zuverlässigen Schutz vor Zugluft, Schlagregen und Außenlärm.

BAFA-förderfähig

15 % staatliche Förderung sichern — wir unterstützen kostenlos* bei der Antragstellung*.

Lichtdurchflutete Räume

Großzügige Glasflächen bringen natürliches Tageslicht tief in den Wohnraum und schaffen Wohlfühlatmosphäre.

Bereit für Ihre IGLO EDGE Slide?

Erhalten Sie ein unverbindliches Angebot für Ihre neue PVC-Schiebetür inklusive Unterstützung bei der BAFA-Antragstellung*.