Wir unterstützen kostenlos* bei der Antragstellung für Ihre 15% BAFA-Förderung*

Aluminium Hebe-Schiebetür -- Einschienen-System

MB-77HS HI MONORAIL

Barrierefreiheit perfektioniert: Die MONORAIL-Variante der MB-77HS HI vereint die bewährte Aluminium-Qualität mit einer innovativen Einschienen-Bodenführung. Die nahezu schwellenfreie Konstruktion schafft einen fließenden Übergang zwischen Wohnraum und Terrasse -- ideal für komfortables Wohnen ohne Stolperkanten.

Profilquerschnitt

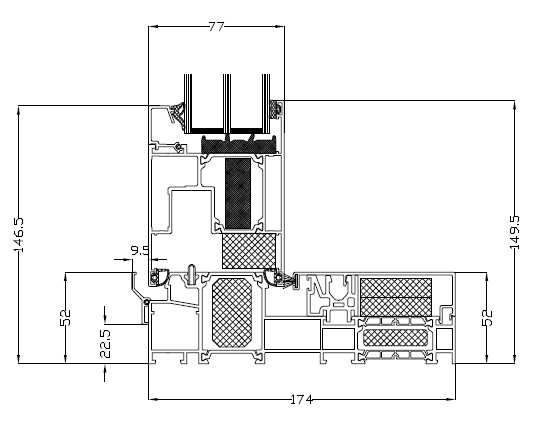
MB-77HS Monorail im Detail

Profilquerschnitt

MB-77HS Monorail Profilquerschnitt — 77mm Einschienen-System
77mm
Bautiefe
Monorail
Typ
Einschienen
System

Terrassensystem-Rendering

MB-77HS Monorail Rendering

MB-77HS Monorail — Einschienen-System

Profilmerkmale auf einen Blick:

  • Einschienen-System
  • Minimalistisches Design
  • Nahtloser Übergang innen/außen
  • Bodengleiche Schwelle
  • Maximale Transparenz

Einschienen-Technik für barrierefreien Komfort

Das MONORAIL-Konzept reduziert die Bodenschiene auf ein Minimum: Statt einer klassischen Doppelschiene gleitet der Flügel auf einer einzelnen, flachen Führung. Das Ergebnis ist ein nahezu ebener Übergang, der Rollstühlen, Kinderwagen und Gehhilfen keinen Widerstand entgegensetzt.

Mit einem Uw-Wert von 0,75 W/(m²K) übertrifft die MONORAIL-Version die ohnehin guten Dämmwerte der Standard-Ausführung deutlich. Die Verglasung von 9 bis 61 mm gibt Ihnen dabei maximalen Spielraum -- von leichtem Einfachglas bis hin zu schwerer Sicherheits- oder Schallschutzverglasung.

Das 3-Kammer-Aluminiumprofil mit 174 mm Tiefe bietet die gewohnte Stabilität der MB-77HS-Serie und eignet sich besonders für Neubauten mit barrierefreiem Konzept oder anspruchsvolle Modernisierungen.

Technische Daten

MaterialAluminium
Kammeranzahl3 Kammern
Bautiefe174 mm
Wärmedämmung (Uw)0,75 W/(m²K)
Verglasung9 – 61 mm
BodenführungMonorail (Einschiene)
SystemtypHebe-Schiebe (HI)

Ihre Vorteile mit der MB-77HS HI MONORAIL

Barrierefreier Übergang

Die Einschienen-Konstruktion ermöglicht einen nahezu schwellenfreien Durchgang -- ideal für generationengerechtes Wohnen.

Bessere Dämmung

Uw = 0,75 W/(m²K) -- die MONORAIL-Variante bietet verbesserte Isolationswerte gegenüber der Standardversion.

Breiter Verglasungsbereich

Von 9 bis 61 mm -- nutzen Sie jede Art von Verglasung, vom Einfachglas bis zum Hochleistungs-Dreifachglas.

BAFA-förderfähig

Sichern Sie sich 15 % staatliche Förderung -- wir unterstützen kostenlos* bei der Antragstellung*.

Bewährte Alu-Qualität

174 mm Bautiefe, 3-Kammer-Profil -- die solide Basis der MB-77HS-Serie in der barrierefreien Variante.

Fließender Raumübergang

Die flache Bodenschiene verschmilzt Innen und Außen zu einem harmonischen Gesamtbild.

MB-77HS HI MONORAIL -- Barrierefreiheit auf höchstem Niveau

Erfahren Sie, wie die MONORAIL-Technik Ihr Wohnerlebnis verändert. Kostenlose Beratung und Angebot.

Wir unterstützen kostenlos* bei der Antragstellung für Ihre 15% BAFA-Förderung*