Wir unterstützen kostenlos* bei der Antragstellung für Ihre 15% BAFA-Förderung*

Aluminium Hebe-Schiebetür

MB-77HS HI

Architektonische Klarheit trifft auf industrielle Belastbarkeit: Die MB-77HS HI ist die Aluminium-Hebe-Schiebetür für anspruchsvolle Projekte. Mit ihrer schlanken Profiloptik, einer Tragfähigkeit von bis zu 400 kg pro Flügel und einer Schienenlast von 300 kg setzt sie Maßstäbe in Stabilität und Design.

Profilquerschnitt

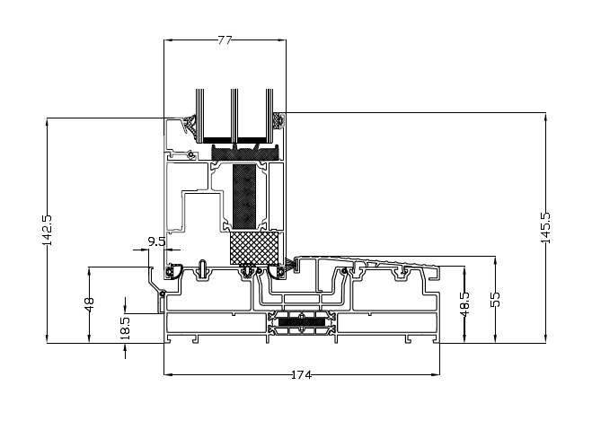
MB-77HS Hebeschiebetür im Detail

Profilquerschnitt

MB-77HS Profilquerschnitt — 77mm Aluminium Hebeschiebe
77mm
Bautiefe
Hebeschiebe
Typ
Aluminium
Material

Terrassensystem-Rendering

MB-77HS Hebeschiebetür Rendering

MB-77HS — Aluminium Hebeschiebetür

Profilmerkmale auf einen Blick:

  • Aluminium-Hebeschiebetür
  • Schmale Profilansichten
  • Maximaler Lichteinfall
  • Thermische Trennung
  • Großformate bis 6m

Robustes Aluminium für große Dimensionen

Die MB-77HS HI wurde für Situationen entwickelt, in denen Kunststoffprofile an ihre Grenzen stoßen. Ihr 3-Kammer-Aluminiumprofil mit 174 mm Bautiefe verbindet die strukturelle Festigkeit von Leichtmetall mit einer hochisolierenden Thermikzone -- für einen Uw-Wert von 1,0 W/(m²K).

Mit einer maximalen Flügellast von 400 kg und einer Schienenbelastbarkeit von 300 kg realisieren Sie imposante Terrassenöffnungen, die auch unter Dauerlast butterweich gleiten. Die präzise Laufmechanik garantiert müheloses Öffnen -- selbst bei raumhohen Glaselementen.

Das „HI"-Kürzel steht für „High Insulation" und kennzeichnet die thermisch verbesserte Variante mit unterbrochener Wärmebrücke. So profitieren Sie von den Vorteilen des Aluminiums, ohne bei der Energieeffizienz Kompromisse einzugehen.

Technische Daten

MaterialAluminium
Kammeranzahl3 Kammern
Bautiefe174 mm
Wärmedämmung (Uw)1,0 W/(m²K)
Max. Flügelgewichtbis 400 kg
Max. Schienenlast300 kg
SystemtypHebe-Schiebe (HI)

Ihre Vorteile mit der MB-77HS HI

400 kg Tragfähigkeit

Realisieren Sie raumhohe Glaselemente -- die Schiene trägt bis zu 300 kg, der Flügel bis zu 400 kg.

High Insulation

Thermisch getrennte Profile für optimale Dämmung trotz Aluminiumbauweise -- Uw = 1,0 W/(m²K).

Schlanke Profilansicht

Filigrane Alu-Profile maximieren den sichtbaren Glasanteil für eine leichte, elegante Architektur.

BAFA-förderfähig

Sparen Sie 15 % dank staatlicher Förderung. Wir begleiten kostenlos* durch den Prozess*.

Langlebig & Korrosionsfrei

Aluminium trotzt Feuchtigkeit, UV-Strahlung und Temperaturschwankungen ohne jede Nachbehandlung.

Leichtgängige Mechanik

Präzisionslaufwerke sorgen für butterweichen Betrieb -- selbst bei schwersten Glaselementen.

MB-77HS HI -- Aluminium-Qualität für Ihr Zuhause

Erleben Sie die Verbindung aus Architektur und Technik. Wir beraten Sie gerne persönlich.

Wir unterstützen kostenlos* bei der Antragstellung für Ihre 15% BAFA-Förderung*