Wir unterstützen kostenlos* bei der Antragstellung für Ihre 15% BAFA-Förderung*
Aluminium-Brandschutztüren

MB-78EI Brandschutztür

Zertifizierter Brandschutz ohne Kompromisse bei der Ästhetik. Das 3-Kammer-Aluminiumprofil mit 78 mm Bautiefe erfüllt die Brandschutzklassen EI30 bis EI60 und bietet gleichzeitig einen Ud-Wert von 1,6 W/(m²K). Spezielles Brandschutzglas und feuerhemmende Konstruktion schützen Menschenleben und Sachwerte.

EI30–EI60 78mm Ud 1,6 Brandschutz
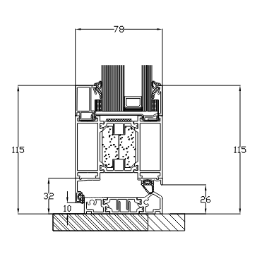
Profilquerschnitt

MB-78EI Brandschutztür im Detail

Profilquerschnitt

MB-78EI Brandschutztür Profilquerschnitt
3
Kammern
78 mm
Bautiefe
1,6
W/(m²K)

Tür-Rendering

MB-78EI Brandschutztür Tür-Rendering

MB-78EI Brandschutztür — Tür-Variante

Profilmerkmale auf einen Blick:

  • EI30/EI60 Brandschutz
  • Aluminium-Brandschutzprofil
  • Rauchschutzdichtungen
  • 200+ RAL-Farben

Geprüfter Brandschutz in elegantem Aluminium-Design

Die MB-78EI ist die Antwort auf die strengen Brandschutzanforderungen in gewerblichen und öffentlichen Gebäuden. Das 3-Kammer-Profil wurde speziell für den Einsatz als Feuerschutzabschluss konzipiert und erfüllt die europäischen Brandschutzklassen EI30 bis EI60. Das bedeutet: Im Brandfall hält diese Tür Feuer und Rauch 30 bis 60 Minuten zuverlässig zurück.

Speziell zertifiziertes Brandschutzglas ermöglicht verglaste Türlösungen, die trotz ihrer feuerhemmenden Eigenschaften Transparenz und Tageslichtdurchfluss bewahren. Die 78 mm Profiltiefe bietet den notwendigen Raum für die Brandschutzeinlagen, die im Ernstfall aufschäumen und den Durchgang hermetisch versiegeln.

Neben dem Brandschutz liefert die MB-78EI mit einem Ud-Wert von 1,6 W/(m²K) auch solide Wärmedämmwerte. So vereint sie Sicherheit, Energieeffizienz und modernes Design in einem Produkt — ideal für Fluchtwege, Treppenhäuser und Brandabschnitte.

Ausstattungsmerkmale

  • Brandschutzklassen EI30 bis EI60 nach europäischer Norm
  • 3-Kammer-Profil mit 78 mm Bautiefe für feuerhemmende Einlagen
  • Zertifiziertes Brandschutzglas für verglaste Lösungen
  • Wärmedämmung mit Ud-Wert 1,6 W/(m²K)
  • Geeignet für Fluchtwege, Treppenhäuser und Brandabschnitte
  • Modernes Aluminium-Design trotz höchster Sicherheitsstandards

Technische Daten

ProfilsystemAluminium (MB-78EI)
Kammern3
Bautiefe78 mm
Ud-Wert1,6 W/(m²K)
BrandschutzklasseEI30 – EI60
VerglasungBrandschutzglas
MaterialAluminium
EinsatzbereichGewerbe, öffentl. Gebäude
15 % BAFA-Förderung sichern

Wir unterstützen kostenlos* bei der Antragstellung für Ihre 15% BAFA-Förderung*

Förderung anfragen

Bereit für Ihre neue MB-78EI Brandschutztür?

Erhalten Sie ein unverbindliches Angebot inklusive Unterstützung bei der BAFA-Antragstellung*.